埼玉・群馬の新築注文住宅・不動産ならサンアイグループ
埼玉県SDGsパートナー
サンアイグループ公式インスタグラム サンアイグループ公式YouTube サンアイホーム公式LINE サンアイグループ公式TikTok サンアイグループ公式フェイスブック

VOICEお客様の声

注文住宅だからこそ全力でこだわってよかったと思います。こだわった分だけ愛着がわいています。

狭山市 A様

【家族構成】ご夫婦

担当者の印象

●川越店
雰囲気が凄く良い。定期的にイベント開催もあり、また行きたいと思える感じのお店。

●営業 清水
レスポンスが早くて、頼み事もすぐに動いてくれるのでとても安心できます。何でも聞ける雰囲気で頼りになるし、困ったときに電話にすぐ出てもらえるのも有難かった。頑張りすぎているので体調に気を付けてください(笑)。

●設計 佐々木
これはやめた方がいい、などはっきりアドバイスをくれてわかりやすく説明してくれる。相談しやすくて理想に近づけるための提案を沢山してくれた。

●現場監督 嶋田
監督さんって怖いイメージだったけど全然そんなことなくて、お茶目でかわいいです(笑)。現場のことに一番詳しくて説明も丁寧。

●関口亮工務店
無理なお願いも聞いてくれて物腰柔らかい、優しい方でした。

●外構柳瀬工業さん
いろいろ考えて自ら動いてくれる、凄く良い人。信頼できます。
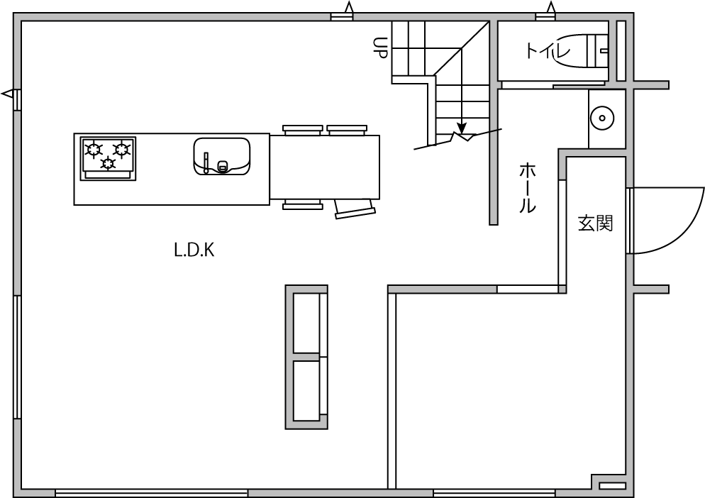
  • 1F
  • 2F
  • 【延床面積】102.27m²(30.93坪)

    サンディホーム来場のきっかけ
    もともと家が欲しくて建売も何軒か見に行ったけど、理想の家がなかなか見つからなくて…友人の清水店長に相談し来場しました。
    サンディホームで建築しようと思った決め手
    土地探しも一生懸命やってくれて、理想がかなえられそうだと思った。初めてのことでわからないことが多かったけど、仕様とかを詳しく教えてもらいながら家づくりができた。一緒に考えて家づくりしてくれている感じが良かった。
    お家づくりの思い出
    ご主人:ショールームに沢山行きました、自分の足で色々なものを見て家づくりができました。家ができ上がる過程を見られて楽しかった。
    奥様:沢山こだわったから1歩進んで2歩下がってみたいな感じだった。でも注文住宅だからこそ全力でこだわってよかったと思います。こだわった分だけ愛着がわいています。
    お家のこだわりポイント
    沢山こだわった部分はあるけど1番は土間スペースです、キャンプが好きなので家でもそういうスペースが欲しくて。土間から庭に出られる間取りにしたのもこだわりです。
    これからお家づくりをされる方へアドバイス
    ご主人:標準内で何ができるのか、自分のやりたいことの値段をしっかり確認した方がいいです。収納棚はハイドアにすると収納量がすごく増えるのでお勧めです。
    奥様:お家のテーマを決めると家づくりがしやすいと思います。家のテーマを考えるのが難しかったらどんなお部屋にしたいか家具から決めてそれに合わせた家づくりをするのもいいと思います。
  • BACK TO INDEX
    カタログやモデルハウスでは分からない
    リアルな住宅の見学会

    お客様のお家見学会

    お客様のお家を見る

    プライバシーポリシー
    サンアイグループ公式インスタグラム サンアイグループ公式YouTube サンアイホーム公式LINE サンアイグループ公式TikTok サンアイグループ公式フェイスブック

    COPYRIGHT © SUNIGROUP ALL RIGHTS RESERVED.

    来店予約

    資料請求

    オンライン相談

    土地情報