イベント
イベント情報
お客様のお家見学会
施工事例
施工事例
ROOM TOUR
引渡しセレモニー
お客様の声
お客様の声
お客様インタビュー
土地
モデルハウス
モデルハウス
モデルハウス販売・購入
商品
mamamo
VILLAX
オーガニックハウス
LALAHA
アパート建築・戸建賃貸
家づくり
納得価格の理由
入居者様とのつながり
建築現場
住宅仕様
保証・アフターサービス
職人紹介
太陽光発電・蓄電池
住宅ローン相談
オンライン相談
会社案内
会社案内
店舗・スタッフ紹介
ブログ
プレスリリース
採用情報
ご紹介について
オーナーズクラブ
不動産売買・賃貸
協力業者募集
来店予約
資料請求
オンライン相談
土地情報
イベント
イベント情報
お客様のお家見学会
施工事例
施工事例
ROOM TOUR
引渡しセレモニー
お客様の声
お客様の声
お客様インタビュー
土地
モデルハウス
モデルハウス
モデルハウス販売・購入
商品
mamamo
VILLAX
オーガニックハウス
アパート建築・戸建賃貸
家づくり
納得価格の理由
入居者様とのつながり
建築現場
住宅仕様
保証・アフターサービス
職人紹介
太陽光発電・蓄電池
住宅ローン相談
オンライン相談
会社案内
会社案内
店舗・スタッフ紹介
ブログ
プレスリリース
採用情報
ご紹介について
オーナーズクラブ
不動産売買・賃貸
協力業者募集
VILLAX
平屋の太田モデルハウス
2026年5月 NEW OPEN
2026年5月に新しくVILLAX 平屋の太田モデルハウスがオープンします。
旅先のリゾートで感じる楽しさやくつろぎ、開放感が実現するモデルハウスです。
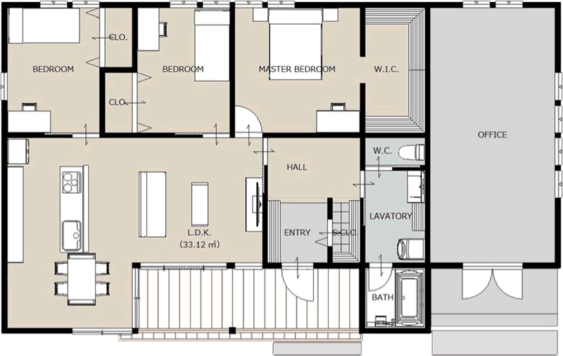
[ プラン ]
1F
ACCESS
アクセス
VILLAX 平屋の太田モデルハウス
〒373-0846
太田市中根町616-6
水曜定休日 受付時間9:00~20:00
0120-792-179
プライバシーポリシー
COPYRIGHT © SUNIGROUP ALL RIGHTS RESERVED.
来店予約
資料請求
オンライン相談
土地情報